Demander un devis

Comparer nos lieux

Comparer

No properties found to compare.

Superficie 280 m2
Salle(s) : 3
Cocktail : 350 pax
Repas assis : 80 pax
Conférence : 105 pax
Défilé : --
Soirée dansante : --
État des lieux
Privatisation 7J/7
Horaires 2h
Thématisé non
Son oui
Lumière du jour oui
Extérieur oui
Plein air non
Voiture non
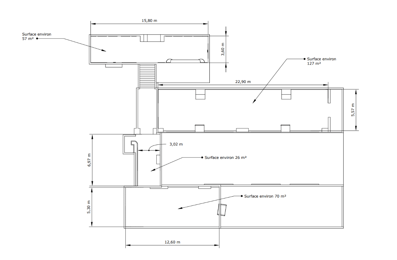
Surfaces disponibles
Salles Superficie Cocktail Repas assis Conférence Défilé Dansant
L'Eiffel Bar & L'Arche 57 m2 60 -- -- -- --
Jungle Groove 127 m2 120 80 105 -- --
Tokyo Jam 70 m2 70 50 100 -- --
Équipements
Accès PMR
Ascenseur(s)
Au vert
Auditorium
Cabine DJ
club
Equipement de projection
Espace scénique
Extérieur
Festivity
Fibre Optique
Hauteur sous plafond
Lumière du jour
Mise en lumière d'ambiance
Monte-charge
Parking privé
Parking public à proximité
Péniche
Plein air
Plein-pied
Rampe d'accès
Rooftop
Sonorisation discours
Studio digital intégré
Vue
Wi-Fi
Workspitality
Descriptif

Masha - Cosmopolite & Épicurien

Les salles et espaces du Masha

Quels événements organiser au Masha ?

Pourquoi organiser un événement au Masha ?

Adresse
Adresse : 85 Avenue Kléber
Transports en communs :

MÉTRO
Ligne 6 et 9 – Arrêt Trocadéro (3 min à pied)

BUS
Ligne 32 et 63 – Arrêt Trocadéro (3 min à pied)
Ligne 30 et 22 – Arrêt Trocadéro (1 min à pied)
Ligne 91 – Bastille (5 min à pied)

VELIB
Station Eylau - Trocadéro (4 min à pied)

TAXIS
1 Avenue d'Eylau (3 min à pied)

PARKING
Zenpark - 11 rue de Magdebourg 75016 Paris
Plans
Plan Masha size: 5840
Floor plan image
En savoir plus